Danube expressz vonat belső
Tervező: Zsigmond Ágnes

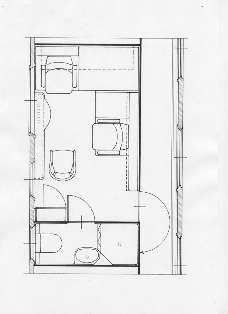
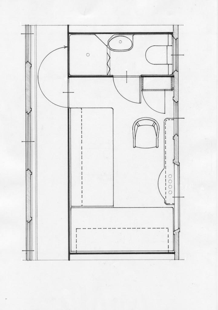
A DANUBE EXPRESS 4 hálókocsival, étkező- és szalonkocsival rendelkező közép-európai hotelvonat.
A 2 személyes fülkékben 2 karosszékké alakítható ágy, 1 mobil karszék, szekrény, zárt és nyitott polc található.
Az álmennyezetbe légkondicionáló, szabályozható világítás, füstérzékelő van beépítve. Az ágyakhoz olvasólámpa tartozik.
Minden fülke saját zuhanyzóval, mosdóval és WC-vel rendelkezik.
A tervezési feladat a szakemberek által kitalált működésű fülkék, zuhanyzók, közlekedők belsőépítészeti megjelenítése volt.












