Veresegyház - családi ház

Családi ház, Veresegyház, Hegyek terület
Terv: 2002-2004 tervező: Zsigmond László, Munkatárs: Balassa Endre, Orbán Oszkár
Statika: Mantuano Tamás Belsőépítészet: Zsigmond Ágnes
Kert: Illyés Zsuzsa
Kivitelezés: kőműves szerkezetek: Fancsali Endre,
Ácsszerkezetek, tetőfedés: Zsiga László
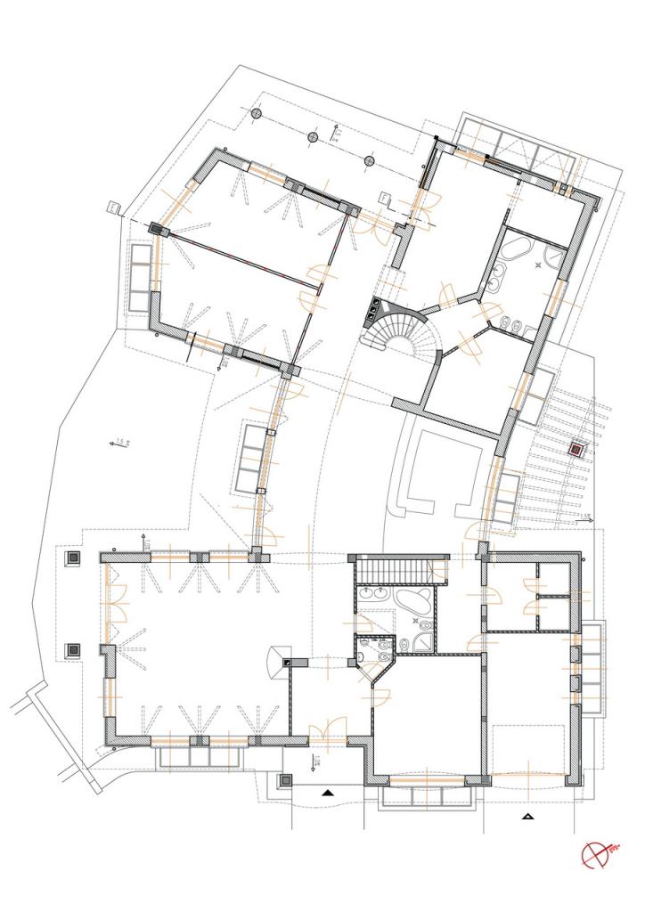
Nagyvállalkozó ismerősöm keresett meg tervezzem meg új házukat, három gyermekkel kinőtték a meglévő családi házat.
Az igényeik is megváltoztak és találtak egy gyönyörű telket a Hegyek területén a domboldalon. Ideális feladat, de nem könnyű eset. A ház alapterülete óriási, az igények
számtalan szempontot tartalmaznak. A terek mérete az átlag többszöröse, mégis családias, barátságos alaphang szükséges és a kifelé reprezentálás elkerülendő.
Az építtető mániákus modellező, a telken a homokba rajzolja az elképzeléseit, amikhez mind ragaszkodik. A ház még nincs kitalálva, de a pincét már kiásta és 2 km vezetéket fektetett le a kertben, melynek végei mind a leendő ház pincéjében vannak.
A hőszigetelés is az átlag többszöröse lesz. Az energia előállítása hőszivattyús fűtéssel
történik, a terek állandó mesterséges szellőzést kapnak, hővisszanyerő technikával.
Minden természetes anyagokból épül. Az ácsszerkezet látszó, gyalult, csiszolt megjelenésű rétegelt ragasztott tartó, melyet a beépítés előtt készre pácolnak és felületkezelnek.
A kivitelezés házilagos szervezésben zajlik kiváló erdélyi építőkkel, hiszen a tulajdonos is
kemény fejű székely. E mellett még diplomás orvos, végzett közgazdász, autókereskedő, de
építész, épületgépész is egyszemélyben. A tréfát félretéve az innováció a mániája, a felesleges munka és energia pocsékolás megszállott ellensége, mindent részletekbe menően ismer és
többször megszégyeníti a gépészeket.
A több éves együttműködés megedzett bennünket és sok más dologban is együtt dolgozunk.
A családi ház is elkészült és boldogan költöztek be a nyár folyamán, habár a belső befejezésénél apró fáradtság nyomait véltem felfedezni, de ez semmit nem vont le
az ünnepi lakásszentelő összejövetel öröméből.









